Created:
Dec 21, 2021
Client:
Pravin Dehankar
Location:
Nagpur, Maharashtra

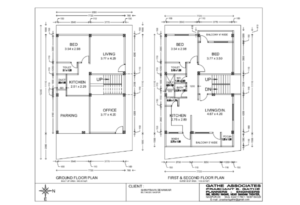
Project Overview

This exceptional residential project in Nagpur, exemplifies our commitment to turning dreams into reality. From the initial stages of designing the first and second floor plans to completing the full construction, we ensured every element reflected the client’s unique vision and requirements. The floor plans were carefully crafted to maximize space, functionality, and natural light, providing a seamless flow between rooms and creating an inviting ambiance. Our construction process focused on precision, quality, and attention to detail, using the finest materials and techniques to deliver a home built to last. Thoughtful touches, such as modern finishes, energy-efficient features, and personalized design elements, add character and comfort to this residence. The result is a beautifully tailored home that harmoniously blends style, functionality, and warmth—a perfect sanctuary for modern living.

Visual Highlights

The images of this residential project beautifully capture the essence of thoughtful design and quality craftsmanship. From the intricately planned floor layouts to the fine details of construction, each photo reflects the care and precision that went into every stage of the project. The exterior showcases the perfect balance of modern aesthetics and durability, while the interior images highlight spacious, well-lit rooms and the seamless integration of personalized features. These visuals tell the story of a home built not just to meet, but to exceed expectations, offering both beauty and functionality in every corner.